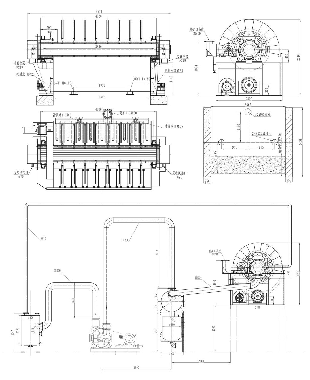
GZP-50新型盘式真空过滤机
GZP-50新型盘式真空过滤机
产品概述
新型盘式真空过滤机其过滤单元主要是由一组带沟槽或棱的环状滤盘构成。过滤时污水从外侧进入,相邻滤盘上的沟槽棱边形成的轮缘把水中固体物截留下来;反冲洗时水自环状滤盘内部流向外侧,将截留在滤盘上的污物冲洗下来,经排污口排出。
盘片在单元内为紧密压实叠加在一起,上下两层盘片中间沟起到过滤拦截的作用。
原水通过过滤单元时由外向内流动,大于沟槽的杂质会被拦截在外部。
盘式过滤机的核心部件是叠放在一起的塑料滤盘,滤盘上有特制的沟槽或棱,相邻滤盘上的沟槽或棱构成一定尺寸的通道,粒径大于通道尺寸的悬浮物均被拦截下来,达到过滤效果。该产品在很大程度上可以取代砂滤器等传统的机械过滤装置,其性能良好,水电耗远低于其他产品。
盘式过滤机在滤盘两面设计了不同结构的棱,这些棱叠加在一起构成拦截面,其中曲线棱主要起到拦截并贮存悬浮物的作用,采用外侧略大的敞口设计可以保证反冲洗时无需松开滤盘,在水压较低时也能达到的反冲洗效果;环状棱边确定过滤精度,构成水的通道,滤盘可以提供高达5μ的过滤精度。
原水进入两层滤盘中间时,先顺曲线棱向盘内流动,但是仔细观察无法直接进入。这时起过滤拦截作用的是环形棱,小于环形棱沟槽尺寸的杂质可以沿环形棱进入与内部相通的曲线棱,大的杂质被拦截下来。
(1)滤盘的结构还使将污物冲出的反冲洗过程简单和容易,不需要复杂的马达和驱动器等机构,简单的水流即可足以将污物冲出滤芯。这种良好的性能减少了过滤机的反冲洗时间;同时由于污物不仅贮存在滤盘组与外壳之间,更多地可以贮存在滤盘组内部,所以过滤机可以容纳更多的污物。
(2)滤清汁质量比袋滤器高。
(3)每个过滤周期清洗滤片只须开闭阀门即可,工人劳动强度低,操作条件好。
(4)可以实现自动控制。
(5)洗水量少,洗水可直接回预灰,糖分损失比袋滤器少。
(6)该设备是密闭过滤操作,不产生雾汽,热损失也少。
(7)节省棉质滤布。




ZPG-10M78ZPG系列电厂脱硫新型盘式真空过滤机
简要描述
其过滤单元主要是由一组带沟槽或棱的环状增强塑料滤盘构成。过滤时污水从外侧进入,相邻滤盘上的沟槽棱边形成的轮缘把水中固体物截留下来;反冲洗时水自环状滤盘内部流向外侧,将截留在滤盘上的污物冲洗下来,经排污口排出。
产品特点
1、扇形滤板脱水孔分布均匀,孔率合理,筋条尺寸大,有高强度工程塑料制成,使用寿命提高了1-1.5倍。
2、滤液管过滤面积大,分配头腹腔面积大,提高了抽气率和滤液排放效果。
3、耐磨锦纶单丝或双层复丝滤布使脱水率提高且不易堵塞,延长了使用寿命。
4、多点干油泵集中自动润滑。
5、滤布自动清洗装置,保持了其良好的脱水效果。
6、卧式强制变速搅拌,轴端采用橡胶及石墨盘根和水压差三重密封,确保不漏浆。
7、主传动无级变速,依物料的浓度及流量调节(交流调速电机或变频器),以求达到好的工作效果。
8、每盘由20片滤扇板组成,加强了过滤过程控制,成饼厚均匀。
9、摩擦片采用特制耐磨材料硼铸铁,刚柔相济、密封效果好,使用寿命长。
10、滤液管为高强度耐磨陶瓷复合钢管,提高寿命10倍以上。
11、滤液管与滤扇接口去掉上下法兰,采用模具定位直接焊接,减少90%可能漏气点。
安装方法
1、对过滤盘在现场组装成部件后,再运至安装点吊装就位;
2、分配盘是心脏部位,应**行安装,并在精准找平后再进行拖轮的安装;
3、内外圈40组托轮档轮安装精确后再吊装转盘;
4、转盘安装找平后再安装滤盘;
5、操作走台在转盘,滤盘组装成型合格后再进行安装;
6、减速传动装置在转盘安装调整精确后再进行安装;
7、由于车间操作空间所限,吊装采用自制的经压弯应力组合公式计算符合吊装要求的回转桅杆吊装。
注意事项
1、主要部件如托轮座、托轮、托辊、简体、主轴承座等安装时,要控制其纵、横向中线,标高,托辊至轴承座的距离;
2、主轴瓦、简体、托辊等部件安装时要调整好水平度;
3、注意盘式真空过滤机的主要部件配合面的接触情况;
4、注意运动部件与静止部件的间隙;
5、分配头不应承受管道的重量,连接分配头的滤液管应装单独的固定支架。
优点
(1)平均过滤速度较高,为袋滤器滤速的2~3倍。
(2)滤清汁质量比袋滤器高。
(3)每个过滤周期清洗滤片只须开闭阀门即可,工人劳动强度低,操作条件好。
(4)可以实现自动控制。
(5)洗水量少,洗水可直接回预灰,糖分损失比袋滤器少。
(6)该设备是密闭过滤操作,不产生雾汽,热损失也少。
(7)节省棉质滤布。
缺点
(1)设备结构比袋滤器复杂。设备制造费用高。
(2)附属设备多。需增设搅拌桶和糖浆泵等。
ZPG-10真空过滤机新型盘式
简要描述
真空过滤机新型盘式调速电机通过减速器及开式齿轮传动来驱动,使之在装满矿浆的槽体中以一定的转速转动,当过滤圆盘的某一滤扇处在过滤吸附区时,借助于真空泵的作用在过滤介质两侧形成压力差,使固体物料吸附在过滤介质(滤布)上并形成滤饼,而滤液则经滤液管及分配头排出。当这一滤扇从矿浆液位中脱离而进入脱水区后,滤饼在真空的抽吸力作用下,水不断与滤饼分离。
真空过滤机新型盘式调速电机通过减速器及开式齿轮传动来驱动,使之在装满矿浆的槽体中以一定的转速转动,当过滤圆盘的某一滤扇处在过滤吸附区时,借助于真空泵的作用在过滤介质两侧形成压力差,使固体物料吸附在过滤介质(滤布)上并形成滤饼,而滤液则经滤液管及分配头排出。当这一滤扇从矿浆液位中脱离而进入脱水区后,滤饼在真空的抽吸力作用下,水不断与滤饼分离。
过滤圆盘在矿浆槽中缓慢转动,借助真空泵形成的压力差,使固体颗粒吸附在圆盘的滤布上,形成一定厚度的滤饼。滤液透过滤饼和滤布从中心轴排除,滤饼在刮刀和鼓风机产生的压力风作用下,掉进卸滤饼槽中。
适于处理含有矿泥的细粒精矿。主要用于过滤浮选精煤和尾煤以及有色金属精矿等细粒物料的脱水,也可用于冶金、化工、石油、污水处理等方面的固液分离。
扇形滤板脱水孔分布均匀,孔率合理,筋条尺寸大,由高强度工程塑料制成,使用寿命提高了1-1.5倍。
滤液管过滤面积大,分配头腹腔面积大,提高了抽气率和滤液排放效果。
耐磨锦纶单丝或双层复丝滤布使脱水率提高且不易堵塞,延长了使用寿命。
多点干油泵集中自动润滑。
滤布自动清洗装置,保持了其良好的脱水效果。
卧式强制变速搅拌,轴端采用橡胶及石墨盘根和水压差三重密封,确保不漏浆。
主传动无级变速,依物料的浓度及流量调节(交流调速电机或变频器),以求达到较好的工作效果。
每盘由20片滤扇板组成,加强了过滤过程控制,成饼厚均匀。
摩擦片采用特制耐磨材料硼铸铁,刚柔相济,密封效果好,使用寿命长。
滤液管为高强度耐磨陶瓷复合钢管,提高寿命10倍以上。
滤液管与滤扇接口去掉上下法兰,采用模具定位直接焊接,减少90%可能漏气点。
ZPG-20铁精矿处理圆盘过滤机 盘式真空过滤机
简要描述
铁精矿处理圆盘过滤机,扇形滤板脱水孔分布均匀,孔率合理,筋条尺寸大,由高强度工程塑料制成,寿命提高了2-3倍。 滤液管过滤数面大,分配头腹腔容积大,提高了抽气率和滤液排放效果。 耐磨锦纶、单或复丝滤布使脱饼率高且不易堵塞,使用寿命长。 多点干油泵集中多点自动润滑。
铁精矿处理圆盘过滤机每一个扇形片为 单独的过滤单元,由滤布做成布套在扇形片上形成滤室。过滤盘由电机通过减速器及开式齿轮传动来驱动 ,过滤盘顺时针方向转动,滤室里的矿浆在吸附区借助于真空泵在过滤介质两侧形成的压力差,附着在过 滤盘上形成滤饼后,搅拌器旋转防止固体沉淀,滤饼离开液面后,在真空作用下继续脱去水分。滤液透过 滤布,经过滤液管,从分配头排出。滤饼在卸料区由反吹风卸料落入排料槽,整个作业过程连续循环进行 。
产品特点
1、扇形滤板脱水孔分布均匀,孔率合理,筋条尺寸大,有高强度工程塑料制成,使用寿命提高了1-1.5倍。
2、滤液管过滤面积大,分配头腹腔面积大,提高了抽气率和滤液排放效果。
3、耐磨锦纶单丝或双层复丝滤布使脱水率提高且不易堵塞,延长了使用寿命。
4、多点干油泵集中自动润滑。
5、滤布自动清洗装置,保持了其良好的脱水效果。
6、卧式强制变速搅拌,轴端采用橡胶及石墨盘根和水压差三重密封,确保不漏浆。
7、主传动无级变速,依物料的浓度及流量调节(交流调速电机或变频器),以求达到好的工作效果。
8、每盘由20片滤扇板组成,加强了过滤过程控制,成饼厚均匀。
9、摩擦片采用特制耐磨材料硼铸铁,刚柔相济、密封效果好,使用寿命长。
10、滤液管为高强度耐磨陶瓷复合钢管,提高寿命10倍以上。
11、滤液管与滤扇接口去掉上下法兰,采用模具定位直接焊接,减少90%可能漏气点。
安装方法
1、对过滤盘在现场组装成部件后,再运至安装点吊装就位;
2、分配盘是心脏部位,应进行安装,并在精准找平后再进行拖轮的安装;
3、内外圈40组托轮档轮安装精确后再吊装转盘;
4、转盘安装找平后再安装滤盘;
5、操作走台在转盘,滤盘组装成型合格后再进行安装;
6、减速传动装置在转盘安装调整精确后再进行安装;
7、由于车间操作空间所限,吊装采用自制的经压弯应力组合公式计算符合吊装要求的回转桅杆吊装。
注意事项
1、主要部件如托轮座、托轮、托辊、简体、主轴承座等安装时,要控制其纵、横向中线,标高,托辊至轴承座的距离;
2、主轴瓦、简体、托辊等部件安装时要调整好水平度;
3、注意盘式真空过滤机的主要部件配合面的接触情况;
4、注意运动部件与静止部件的间隙;
5、分配头不应承受管道的重量,连接分配头的滤液管应装单独的固定支架。
优点
(1)平均过滤速度较高,为袋滤器滤速的2~3倍。
(2)滤清汁质量比袋滤器高。
(3)每个过滤周期清洗滤片只须开闭阀门即可,工人劳动强度低,操作条件好。
(4)可以实现自动控制。
(5)洗水量少,洗水可直接回预灰,糖分损失比袋滤器少。
(6)该设备是密闭过滤操作,不产生雾汽,热损失也少。
(7)节省棉质滤布。
缺点
(1)设备结构比袋滤器复杂。设备制造费用高。
(2)附属设备多。需增设搅拌桶和糖浆泵等。
ZPG-30新型盘式真空过滤机
简要描述
新型盘式真空过滤机调速电机通过减速器及开式齿轮传动来驱动,使之在装满矿浆的槽体中以一定的转速转动,当过滤圆盘的某一滤扇处在过滤吸附区时,借助于真空泵的作用在过滤介质两侧形成压力差,使固体物料吸附在过滤介质(滤布)上并形成滤饼,而滤液则经滤液管及分配头排出。当这一滤扇从矿浆液位中脱离而进入脱水区后,滤饼在真空的抽吸力作用下,水不断与滤饼分离。
新型盘式真空过滤机调速电机通过减速器及开式齿轮传动来驱动,使之在装满矿浆的槽体中以一定的转速转动,当过滤圆盘的某一滤扇处在过滤吸附区时,借助于真空泵的作用在过滤介质两侧形成压力差,使固体物料吸附在过滤介质(滤布)上并形成滤饼,而滤液则经滤液管及分配头排出。当这一滤扇从矿浆液位中脱离而进入脱水区后,滤饼在真空的抽吸力作用下,水不断与滤饼分离。
过滤圆盘在矿浆槽中缓慢转动,借助真空泵形成的压力差,使固体颗粒吸附在圆盘的滤布上,形成一定厚度的滤饼。滤液透过滤饼和滤布从中心轴排除,滤饼在刮刀和鼓风机产生的压力风作用下,掉进卸滤饼槽中。
适于处理含有矿泥的细粒精矿。主要用于过滤浮选精煤和尾煤以及有色金属精矿等细粒物料的脱水,也可用于冶金、化工、石油、污水处理等方面的固液分离。
扇形滤板脱水孔分布均匀,孔率合理,筋条尺寸大,由高强度工程塑料制成,使用寿命提高了1-1.5倍。
滤液管过滤面积大,分配头腹腔面积大,提高了抽气率和滤液排放效果。
耐磨锦纶单丝或双层复丝滤布使脱水率提高且不易堵塞,延长了使用寿命。
多点干油泵集中自动润滑。
滤布自动清洗装置,保持了其良好的脱水效果。
卧式强制变速搅拌,轴端采用橡胶及石墨盘根和水压差三重密封,确保不漏浆。
主传动无级变速,依物料的浓度及流量调节(交流调速电机或变频器),以求达到好的工作效果。
每盘由20片滤扇板组成,加强了过滤过程控制,成饼厚均匀。
摩擦片采用特制耐磨材料硼铸铁,刚柔相济,密封效果好,使用寿命长。
滤液管为高强度耐磨陶瓷复合钢管,提高寿命10倍以上。
滤液管与滤扇接口去掉上下法兰,采用模具定位直接焊接,减少90%可能漏气点。
ZPG-40真空过滤机盘式
简要描述
ZPG型盘式真空过滤机是利用真空作为过滤动力,使浆液进行固液分离的设备。适用于矿山金属矿、非金属矿、环保污泥、水泥、建材等行业细颗粒物料的过滤脱水。真空过滤机盘式充分借鉴了国外同类产品的优点,针对金属矿物密度大,沉降快、含固体颗粒的滤液对过滤管冲击力强的特点,进行了整体性能和各部件之间优化设计,具有结构坚固、滤盘运转平稳、自动变速强力搅拌。
技术特点
1、滤扇:
结合现有滤扇使用的一些缺陷,根据选矿行业的特殊性,我公司重新设计了专用新型滤扇。
(1)表面光滑,脱水孔分布均匀,孔率合理,滤扇和筋条的边缘均呈圆角,不但提高了脱水率,同时也延长了滤布的使用寿命。
(2)滤扇头有倒角,强度高,滤扇底部有加强筋,在装配、拆卸时不易损坏、断裂。
(3)筋条走向与滤扇的中心线夹角更合理,流体阻力小。滤扇的有效面积大,提高了过滤机的处理能力。
(4)滤扇的壁厚比普通的增加了1/3,同时滤扇的重量也增加了1/3,是现在国内市场上结构合理、牢固的滤扇之一,平均寿命延长1.5-2倍。
2、主轴与过滤管:
(1)过滤管(包括轴头)采用高强度耐磨陶瓷复合钢管,管壁厚,不易磨损,提高寿命二到三倍以上。
(2)滤液管与滤扇接口处取消法兰连接,而采用模具定位直接焊接,排除了原法兰连接处防漏胶皮垫圈老化的因素,消除了可能的漏气点。
(3)每扇滤扇一块压板,压板两端分别用不锈钢螺栓和螺母压紧,不易生锈,便于更换滤布、劳动强度大副减低。
3、搅拌:
针对铁矿粉的特殊性能,针对现在市场上过滤机容易漏和搅拌系统不耐用的特点,我公司采取以下搅拌装置,达到好的效果,并得到用户好评。
(1)加永磁铁--防止矿粉进入搅拌套内;
(2)采用水密封;
(3)采用盘根密封;
(4)加轴用骨架密封圈密封;
(5)轴表面进行镀铬处理,不易生锈;
4、槽体
搅拌轴下方槽体内采用刚玉高分子耐磨涂层,防止槽体钢板磨损。
5、控制盘、摩擦片:
采用特制耐磨硼磷铸铁,刚柔相济,密封效果好,使用寿命延长2-3倍。
6、润滑和清洗:
采用干油泵集中多点自动润滑,保证设备正常运行。滤布清洗采用自动清洗装置,保持了良好的脱水效果。
7、电控:
采用变频调速,以物料的浓度及流量调节,达到较高的工作效果。
ZPG-60M²ZPG系列盘式真空过滤机
简要描述
由过滤单元并列组合而成,其过滤单元主要是由一组带沟槽或棱的环状增强塑料滤盘构成。过滤时污水从外侧进入,相邻滤盘上的沟槽棱边形成的轮缘把水中固体物截留下来;反冲洗时水自环状滤盘内部流向外侧,将截留在滤盘上的污物冲洗下来,经排污口排出。
产品特点
1、扇形滤板脱水孔分布均匀,孔率合理,筋条尺寸大,有高强度工程塑料制成,使用寿命提高了1-1.5倍。
2、滤液管过滤面积大,分配头腹腔面积大,提高了抽气率和滤液排放效果。
3、耐磨锦纶单丝或双层复丝滤布使脱水率提高且不易堵塞,延长了使用寿命。
4、多点干油泵集中自动润滑。
5、滤布自动清洗装置,保持了其良好的脱水效果。
6、卧式强制变速搅拌,轴端采用橡胶及石墨盘根和水压差三重密封,确保不漏浆。
7、主传动无级变速,依物料的浓度及流量调节(交流调速电机或变频器),以求达到较好的工作效果。
8、每盘由20片滤扇板组成,加强了过滤过程控制,成饼厚均匀。
9、摩擦片采用特制耐磨材料硼铸铁,刚柔相济、密封效果好,使用寿命长。
10、滤液管为高强度耐磨陶瓷复合钢管,提高寿命10倍以上。
11、滤液管与滤扇接口去掉上下法兰,采用模具定位直接焊接,减少90%可能漏气点。
安装方法
1、对过滤盘在现场组装成部件后,再运至安装点吊装就位;
2、分配盘是心脏部位,应**行安装,并在精准找平后再进行拖轮的安装;
3、内外圈40组托轮档轮安装精确后再吊装转盘;
4、转盘安装找平后再安装滤盘;
5、操作走台在转盘,滤盘组装成型合格后再进行安装;
6、减速传动装置在转盘安装调整精确后再进行安装;
7、由于车间操作空间所限,吊装采用自制的经压弯应力组合公式计算符合吊装要求的回转桅杆吊装。
注意事项
1、盘式真空过滤机的主要部件如托轮座、托轮、托辊、简体、主轴承座等安装时,要控制其纵、横向中线,标高,托辊至轴承座的距离;
2、盘式真空过滤机的主轴瓦、简体、托辊等部件安装时要调整好水平度;
3、注意盘式真空过滤机的主要部件配合面的接触情况;
4、注意运动部件与静止部件的间隙;
5、盘式真空过滤机的分配头不应承受管道的重量,连接分配头的滤液管应装单独的固定支架。
优点
(1)平均过滤速度较高,为袋滤器滤速的2~3倍。
(2)滤清汁质量比袋滤器高。
(3)每个过滤周期清洗滤片只须开闭阀门即可,工人劳动强度低,操作条件好。
(4)可以实现自动控制。
(5)洗水量少,洗水可直接回预灰,糖分损失比袋滤器少。
(6)该设备是密闭过滤操作,不产生雾汽,热损失也少。
(7)节省棉质滤布。
缺点
(1)设备结构比袋滤器复杂。设备制造费用高。
(2)附属设备多。需增设搅拌桶和糖浆泵等。